Gelegen in het dorpshart van Hombeek, op een boogscheut van Mechelen, geniet u hier van een rustige woonomgeving met alle voorzieningen binnen handbereik. Op wandelafstand vindt u diverse delicatessenzaken, horeca en openbaar vervoer. Dankzij de vlotte verbinding naar de E19 bereikt u zowel Antwerpen als Brussel in een mum van tijd. Voor wie houdt van natuur en ontspanning liggen ook de Eglegemvijver en het jaagpad langs de Zenne vlakbij.
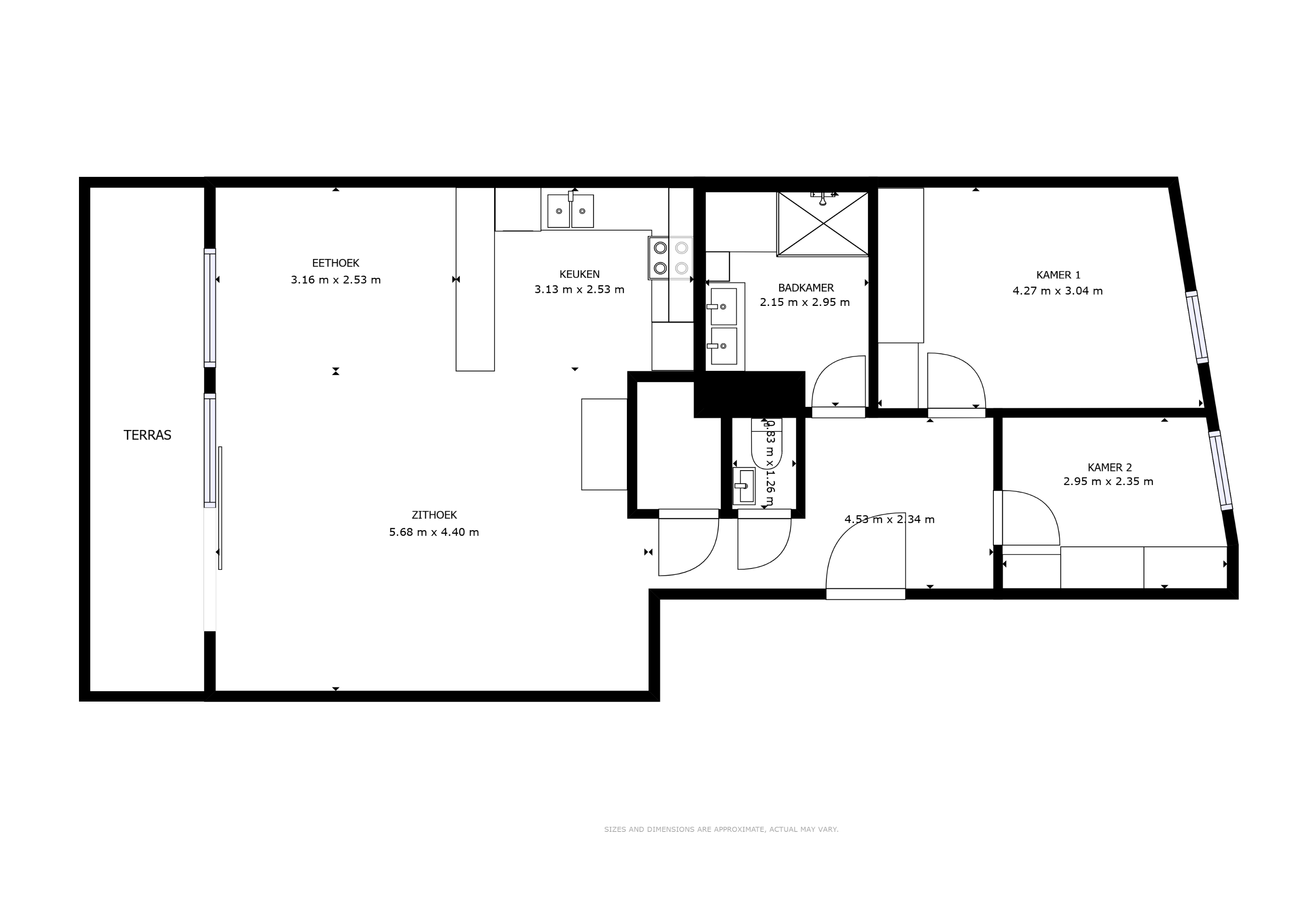
Bij het betreden van het volledig gemeubeld appartement wordt u verwelkomd in een ruime inkomhal met gastentoilet en vestiaire. De lichtrijke leefruimte biedt plaats voor zowel een gezellige zithoek als een eetruimte, en sluit naadloos aan op de volledig geïnstalleerde open keuken. Deze vormt het hart van de woning en creëert een warme, uitnodigende sfeer. Het ruime terras vormt een mooie verlenging van de leefruimte en zorgt voor een aangename connectie met buiten.
Vooraan het appartement bevinden zich twee lichtrijke slaapkamers, beide voorzien van praktische dressingkasten. De ruime badkamer is functioneel en stijlvol ingericht, met een luxueuze douche en dubbele wastafel, wat bijdraagt aan het dagelijks comfort. Aansluiting voor was- en droogmachine is aanwezig.
Bijzonderheden
Bent u op zoek naar een comfortabel en energiezuinig appartement op een rustige, doch centrale ligging? Neem dan gerust contact op via thomas.onzia@urbainvastgoed.be of bel 03 501 97 16 voor meer informatie of een bezoek.
